















Ashfield Road, London, W3
- 2 beds
- 1 baths
- 1 reception

Key Features
- Luxury Apartment
- Share of Freehold
- No Onward Chain
- Finished to a High Specification
- 10 Year ICW Warranty
- Siemens Appliances, Bespoke Joinery & Italian Designed Kitchen
- Two Bedrooms
- Bathroom
- Underfloor Heating
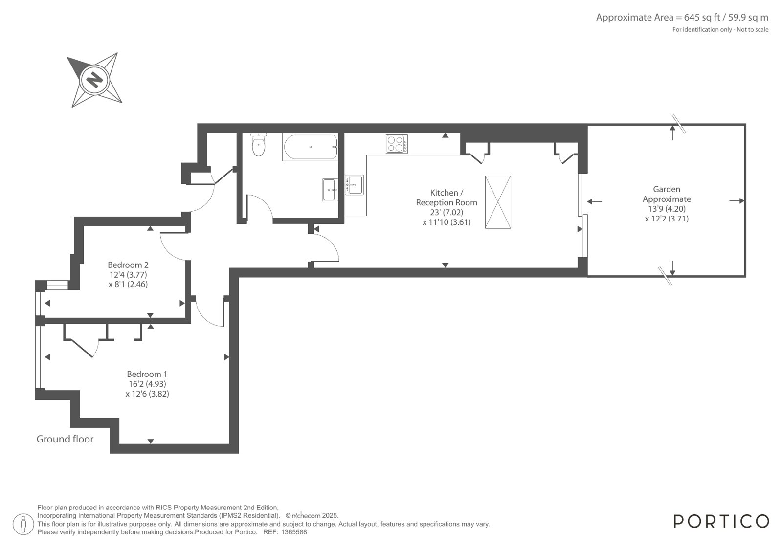
- 645 Approx Sq Ft
Description
Luxury Two-Bedroom Apartment | Share of Freehold | No Onward Chain
Nestled on a quiet and highly sought-after road, this exceptional two-bedroom, one-bathroom luxury apartment has been finished to an outstanding specification. The property enjoys the benefit of a share of freehold, underfloor heating, and a 10-year ICW warranty for complete peace of mind.
The bright and spacious open-plan kitchen, living, and dining area features an Italian-designed kitchen with Siemens appliances and bespoke joinery. Bi-fold doors open onto a beautifully landscaped garden, creating a seamless indoor-outdoor living experience.
The principal bedroom boasts fitted wardrobes, elegant panelled walls, and a stylish en-suite bathroom, while the second bedroom offers versatility as a guest room or home office.
Additional highlights include high ceilings, ample hallway storage, and handcrafted tiling throughout — a perfect blend of sophistication and comfort.
Ashfield Road is located near a variety of shops, cafes and amenities in both Acton and Shepherds Bush, as well as excellent transport links including Action Central and Acton Main Line Stations. East Acton Station is within Walking Distance.
Ashfield Road, London, W3
- 2 beds
- 1 baths
- 1 reception

Similar Properties
HOW MUCH IS YOUR PROPERTY REALLY WORTH?
Getting an accurate valuation is vital when you are selling or letting a property. Our team are experts in the London property market. Get in touch to find out how much your property is worth.
book a valuation